Apartment
"Utkiek"
max. 4 Personen und 1 Kleinkind
sonniger Balkon
Safe
WLAN und Parkplatz kostenfrei
Herzlich willkommen im Apartment "Utkiek" (5.12)
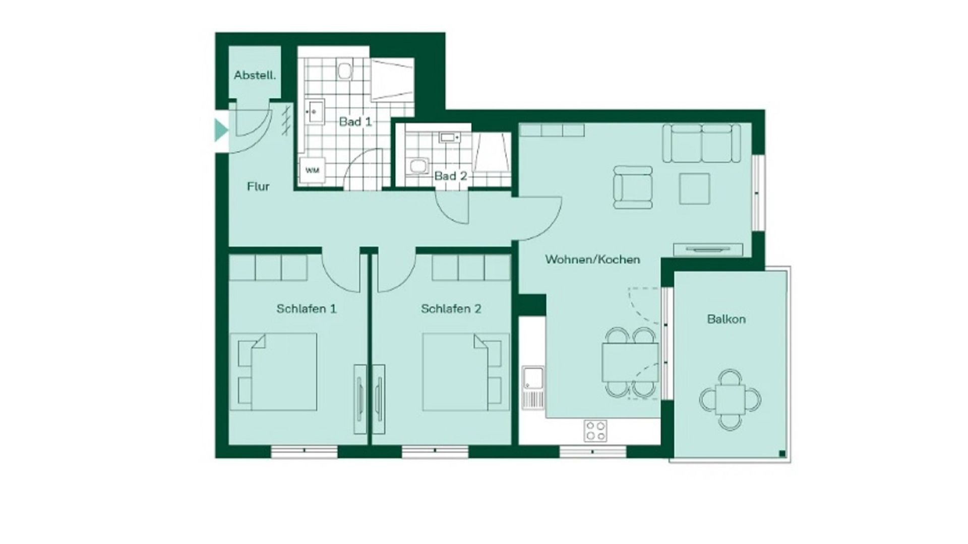
Auf einer Wohnfläche von 92 m² finden vier Erwachsene und ein Kleinkind bis zwei Jahre in dieser modern eingerichteten Ferienwohnung ausreichend Platz für einen entspannten Urlaub am Stettiner Haff auf Usedom.
Dieses großzügige Ferienapartment befindet sich in der zweiten Etage (Aufzug vorhanden) des im Jahre 2022 erbauten Gebäudes Nummer 5 und weist viele behindertenfreundliche Merkmale auf.
Der offen gestaltete Wohnbereich ist mit einem komfortablen Sofa und Sessel sowie Smart-TV ausgestattet. Sie haben vom Wohnzimmer aus Zugang zum Südwest-Balkon. Der möblierte Balkon mit traumhaften Ausblicken auf das Stettiner Haff bietet auch aus der zweiten Reihe einen wunderschönen Ort, um Ihre Mahlzeiten zu genießen und die Aussicht zu bewundern.
Die Küchenzeile verfügt über hochwertige Geräte wie Herd, Backofen, Kaffeemaschine, Kühl- und Gefrierschrank sowie Spülmaschine. Ausreichend Geschirr, Besteck sowie Töpfe und Pfannen befinden sich in den Schränken. Am großen Esstisch finden Sie vor einem erholsamen Urlaubstag zu einem gemeinsamen Frühstück zusammen.
Erholsamer Schlaf in den beiden Schlafzimmern mit je einem Doppelbett (180 x 200 cm) ist garantiert. Ein Schlafzimmer ist mit einem weiteren TV-Gerät ausgestattet.
Die beiden vollausgestatteten Badezimmer verfügen jeweils über eine ebenerdige Dusche, WC, Waschtischanlage sowie Fön. Im großen Badezimmer befindet sich eine Waschmaschine zur freien Verfügung.
Ihre Wertgegenstände lagern Sie während des Aufenthalts sicher im Safe.

Der Südwest-Balkon ist ein angenehmer Ort, um sich zu entspannen, frische Luft zu schnappen und die Sonne bei einem Sommergetränk zu genießen.
Ausstattung
- schöner Haffblick
- Sonnenbalkon mit Sitzmöglichkeiten
- SAT-TV im Wohn- und Schlafzimmer
- Safe
- kostenloses WLAN (max. 16 Mbit/s)
- Fußbodenheizung
- Insektenschutz an den Fenstern
- Wohn- und Schlafräume können mittels Außenjalousien komplett abgedunkelt werden
- kostenfreier PKW-Stellplatz vor dem Feriendomizil (weitere Parkplätze auf Anfrage möglich)
- öffentliche Ladestation für E-Autos in etwa 500 Metern Entfernung
- abschließbarer Fahrradabstellraum
- kostenfreie Nutzung der Saunalandschaft im Dachgeschoss und sämtlicher Freizeiteinrichtungen im Untergeschoss auf insgesamt 580 Quadratmetern
- Kleinkinderausstattung (Hochstuhl und Babybett) gegen geringe Gebühr verfügbar
- Haustiere nicht gestattet
Informationen für Gäste mit Mobilitätseinschränkung: Der Zugang vom Parkplatz zum Hauseingang ist barrierefrei. Die Breite der Haustür beträgt 100 cm. Die Dichtigkeitsschwelle der Haustür ist etwa 1,5 cm hoch. Der Aufzug im Treppenhaus fährt jede Etage, somit auch die Freizeitbereiche im Untergeschoss als auch die Saunalandschaft im Obergeschoss, an. Die Türbreite des Aufzugs beträgt 90 cm, die Tiefe beträgt 130 cm. Die Wohnungstür weist eine Breite von 90 cm auf. Die Breiten der Zimmertüren liegen bei 80 cm (Ausnahme: Türbreite vom kleinen Badezimmer und Abstellkammer beträgt 70 cm). Im großen Badezimmer beträgt die Breite der Duschtür 80 cm, die Dichtigkeitsschwelle ist etwa 0,5 cm hoch. Auf Wunsch kann ein Duschhocker kostenfrei zur Verfügung gestellt werden. Im kleinen Badezimmer beträgt die Breite der Duschtür 60 cm. Die Dichtigkeitsschwelle ist etwa 0,5 cm hoch. Der Waschtisch im großen Badezimmer ist nicht unterfahrbar, im kleinen Badezimmer ist der Waschtisch unterfahrbar. Haltegriffe sind nicht vorhanden. Die Betten weisen eine Höhe von 50 bzw. 60 cm auf (max. 25 bzw. 30 cm unterfahrbar). Die Balkontür ist zweiflügelig und weist eine Schwelle von etwa 15 cm auf (nicht barrierefrei). Das an der Balkontür befindliche Fliegengitterschiebeelement lässt die Balkontür auf eine Breite von etwa 70 cm öffnen. Die Freizeitbereiche im Untergeschoss sind komplett barrierefrei gestaltet. Die Türbreiten liegen bei 90 cm. Im Dachgeschoss ist eine Sauna mit dem Rollstuhl befahrbar, die Türbreite beträgt 90 cm. Für das Betreten der Dachterrassen müssen zwei Stufen passiert werden.
Spaß und Erholung für die gesamte Familie
Weit ab von der Hektik und den Besuchermassen öffentlicher Wellnessangebote, finden Sie im Dachgeschoss des Hauses auf 190 m² die Ruhe, die Sie sich verdient haben. Entspannen Sie im hauseigenen, kostenfreien Wellnessbereich mit zwei Saunen und gemütlichem Ruheraum. Genießen Sie die klare Ostseeluft auf der großen angrenzenden Dachterrasse.
Ihre Kinder dürfen sich auf den vielseitig gestalteten Freizeitbereich (390 m²) im Souterrain mit Tischtennis, Kickertisch, Schachbrett und Spielezimmer freuen, der selbst an "Schlechtwettertagen" keine Langeweile aufkommen lässt. Erwachsene finden am Billardtisch oder in der gemütlichen Lounge-Ecke Ausgleich mit einem guten Buch oder Musik im Ohr.
Die aktiven Urlauberinnen und Urlauber kommen in dem großzügigen, lichtdurchfluteten Fitnessraum auf ihre Kosten, wo das Angebot an hochwertigen Marken-Sportgeräten u. a. mit verschiedenen Cardiogeräten, einer Multifunktions-Kraftstation und Hantelbänken ein individuelles Training ermöglicht.
Im Souterrain stehen allen Gästen des Hauses zwei Waschmaschinen und zwei Trockner zur freien Verfügung.
Wir freuen uns auf Ihren
Aufenthalt im Apartment "Utkiek"
Buchen Sie ohne Risiko! Den Reisepreis erfahren Sie nach Eingabe des Reisezeitraums.
- bis zu 5 Tage vor Anreise kostenfrei stornierbar für maximale Flexibilität
- keine festgelegten An- und Abreisetage
- jetzt buchen und erst 7 Tage vor Anreise bezahlen
- Best-Preis-Garantie
- keine Anzahlung erforderlich
- Schlüsselübergabe direkt vor Ort
- Ansprechpartnerinnen und Ansprechpartner vor Ort täglich erreichbar
- Erstausstattung inklusive für einen komfortablen Urlaubsbeginn
- Bettwäsche und Handtücher inklusive
- hochwertige Gästemappe mit Ausflugsempfehlungen
- Kleinkinderausstattung bequem unter "Zusatzleistungen" hinzubuchen
Aktionspreise
- 5 % Frühbucherrabatt bei Buchung mind. 9 Monate im Voraus
- 5 % Rabatt bei Buchung von mind. 5 Nächten & 10 % Rabatt bei Buchung von mind. 10 Nächten in folgenden Zeiträumen:
- 02. November 2025 - 19. Dezember 2025
- 04. Januar 2026 - 30. Januar 2026
- 21. Februar 2026 - 27. März 2026
- 02. November 2026 - 18. Dezember 2026
- 05. Januar 2027 - 29. Januar 2027
- 21. Februar 2027 - 19. März 2027
Hinweis
Die "Haffresidenz" ist ein Neubauprojekt auf der schönen Insel Usedom. Es umfasst eine beeindruckende Anzahl von insgesamt zehn Apartmenthäusern. Dieses Bauprojekt wird dazu beitragen, das Angebot an hochwertigen Unterkünften in der Region zu erweitern und unseren Urlaubsgästen ein komfortables und modernes Urlaubserlebnis zu bieten. Jedes der Apartmenthäuser wird sorgfältig gestaltet und ausgestattet, um den individuellen Bedürfnissen und Vorlieben unserer Gäste gerecht zu werden.
Während des laufenden Bauprojekts der "Haffresidenz" können vorübergehend akustische Beeinträchtigungen auftreten, bis alle Häuser fertiggestellt sind. Etwaige Ansprüche auf Mietpreisminderung im Zusammenhang mit der Baustelle sind mit Kenntnisnahme dieser Informationen abgedeckt. Der Bauträger bemüht sich, die Beeinträchtigungen so gering wie möglich zu halten und die Arbeiten innerhalb der festgelegten zeitlichen Rahmen und Vorschriften durchzuführen.
Die vollständige Fertigstellung der ersten beiden Häuser 4a und 5 im Jahr 2021 bzw. 2022 ist ein wichtiger Meilenstein in diesem Bauprojekt. Somit stehen nun hochwertige Unterkünfte zur Verfügung, die unseren Gästen einen komfortablen und angenehmen Aufenthalt bieten. Die sorgfältige Planung und Umsetzung haben zu einem erfolgreichen Abschluss geführt und unsere Gäste können nun die Annehmlichkeiten und die entspannte Atmosphäre der fertiggestellten Häuser genießen. Die Häuser 3, 3a und 4 stehen kurz vor Fertigstellung und werden im Sommer 2023 an die Eigentümerinnen und Eigentümer übergeben.
Die restlichen Häuser der "Haffresidenz" befinden sich bereits im fortgeschrittenen Baustadium (Rohbau- und Fassadenarbeiten sowie der Fenstereinbau sind fast vollständig abgeschlossen). In diesem Stadium der Bauarbeiten sind in der Regel die meisten lauten Aktivitäten abgeschlossen. Es ist anzunehmen, dass die Beeinträchtigungen durch Lärm minimal sind oder sogar ganz entfallen.




















