Apartment
"Wikinger exklusiv"
max. 4 Personen und 1 Kleinkind
mit 5 Sternen vom DTV klassifiziert
Kaminofen und eigener Strandkorb auf dem Bakon
40 % Greenfee-Ermäßigung auf Golfplatz
Herzlich willkommen in dem mit 5 Sternen ausgezeichneten Apartment "Wikinger Exklusiv" (5.7)
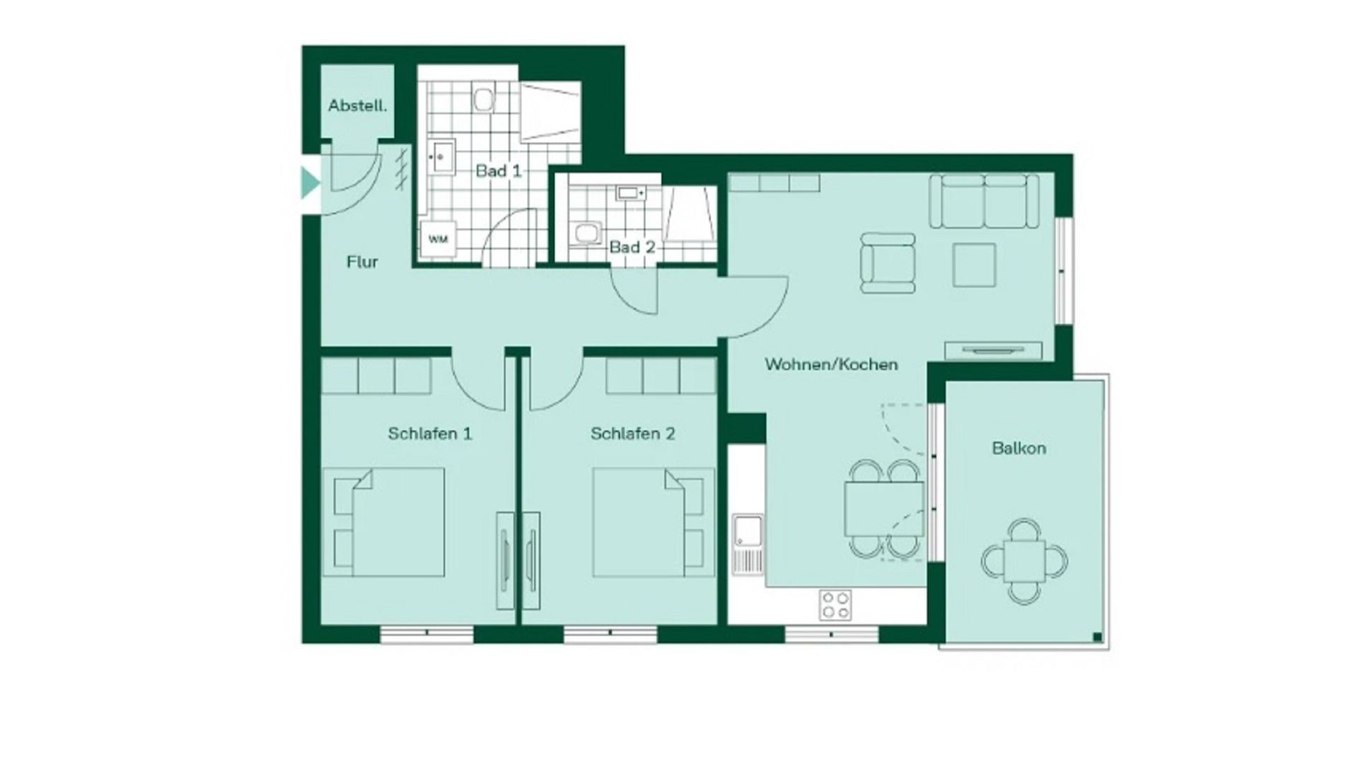
Auf einer Wohnfläche von 92 m² finden vier Erwachsene und ein Kleinkind bis zwei Jahre in dieser modern eingerichteten Ferienwohnung ausreichend Platz für einen entspannten Urlaub am Stettiner Haff auf Usedom.
Dieses großzügige Ferienapartment mit Kaminofen und eigenem Strandkorb auf dem Balkon befindet sich in der ersten Etage (Aufzug vorhanden) des im Jahre 2022 erbauten Gebäudes Nummer 5 und weist viele behindertenfreundliche Merkmale auf.
Der offen gestaltete Wohnbereich ist mit einem Ledersofa und Sessel sowie Smart-TV ausgestattet. Sie haben vom Wohnzimmer aus Zugang zum Südwest-Balkon. Im Winter sorgt der Kamin für eine wohlige Wärme. Der möblierte Balkon mit traumhaften Ausblicken auf das Stettiner Haff bietet auch aus der zweiten Reihe einen wunderschönen Ort, um Ihre Mahlzeiten zu genießen und die Aussicht zu bewundern. Der Strandkorb auf dem Balkon wird schnell Ihr Lieblingsplatz in dieser Ferienwohnung werden.
Die Küchenzeile verfügt über hochwertige Geräte wie Herd, Nespresso-Maschine, Mikrowelle, Backofen, Kühlschrank mit Gefrierfach sowie Spülmaschine. Ausreichend Geschirr, Besteck sowie Töpfe und Pfannen befinden sich in den Schränken. Am großen Esstisch finden Sie vor einem erholsamen Urlaubstag zu einem gemeinsamen Frühstück zusammen.
Erholsamer Schlaf in den beiden Schlafzimmern mit je einem Ruf-Boxspringbett (180 x 200 cm) ist garantiert. Ein Schlafzimmer ist mit einem weiteren TV-Gerät ausgestattet.
Die beiden vollausgestatteten Badezimmer verfügen jeweils über eine ebenerdige Dusche, WC, Waschtischanlage sowie Fön. Ein Badezimmer ist zusätzlich mit einem Bidet ausgestattet.
Als Feriengast dieses Apartments erhalten Sie für den Usedomer 45-Loch-Golfplatz "Balmer See" eine Greenfee-Ermäßigung in Höhe von 40 Prozent!

18 Loch: Sommer Tages-Greenfee 75,00 €
mit Ermäßigung nur 45,00 €
9 Loch: Sommer Greenfee 40,00 €
mit Ermäßigung nur 24,00 €
9 Loch: Übungsplatz 29,00 €
mit Ermäßigung nur 17,40 €
Winter Tages-Greenfee 35,00 €
mit Ermäßigung nur 21,00 €
Ausstattung
- schöner Haffblick
- Sonnenbalkon mit Sitzmöglichkeiten und Strandkorb
- 5 Sterne DTV-Klassifizierung
- SAT-TV im Wohn- und Schlafzimmer
- Kaminofen für wohlige Wärme
- kostenloses WLAN (max. 16 Mbit/s)
- Fußbodenheizung
- Insektenschutz an den Fenstern
- Wohn- und Schlafräume können mittels Außenjalousien komplett abgedunkelt werden
- kostenfreier PKW-Stellplatz vor dem Feriendomizil (weitere Parkplätze auf Anfrage möglich)
- öffentliche Ladestation für E-Autos in etwa 500 Metern Entfernung
- abschließbarer Fahrradabstellraum
- kostenfreie Nutzung der Saunalandschaft im Dachgeschoss und sämtlicher Freizeiteinrichtungen im Untergeschoss auf insgesamt 580 Quadratmetern
- Babybett kostenfrei; zusätzliche Matratze und Wäsche für das Babybett gegen geringe Gebühr verfügbar
- Haustiere nicht gestattet
Informationen für Gäste mit Mobilitätseinschränkung: Der Zugang vom Parkplatz zum Hauseingang ist barrierefrei. Die Breite der Haustür beträgt 100 cm. Die Dichtigkeitsschwelle der Haustür ist etwa 1,5 cm hoch. Der Aufzug im Treppenhaus fährt jede Etage, somit auch die Freizeitbereiche im Untergeschoss als auch die Saunalandschaft im Obergeschoss, an. Die Türbreite des Aufzugs beträgt 90 cm, die Tiefe beträgt 130 cm. Die Wohnungstür weist eine Breite von 90 cm auf. Die Breiten der Zimmertüren liegen bei 80 cm (Ausnahme: Türbreite vom kleinen Badezimmer und Abstellkammer beträgt 70 cm). Im großen Badezimmer beträgt die Breite der Duschtür 80 cm, die Dichtigkeitsschwelle ist etwa 0,5 cm hoch. Auf Wunsch kann ein Duschhocker kostenfrei zur Verfügung gestellt werden. Im kleinen Badezimmer beträgt die Breite der Duschtür 60 cm. Die Dichtigkeitsschwelle ist etwa 0,5 cm hoch. Die Waschtische in beiden Bädern sind nicht unterfahrbar. Haltegriffe sind nicht vorhanden. Die Betten weisen eine Höhe von 70 cm auf und sind unterfahrbar (max. 10 cm). Die Balkontür ist zweiflügelig und weist eine Schwelle von etwa 15 cm auf (nicht barrierefrei). Das an der Balkontür befindliche Fliegengitterschiebeelement lässt die Balkontür auf eine Breite von etwa 70 cm öffnen. Die Freizeitbereiche im Untergeschoss sind komplett barrierefrei gestaltet. Die Türbreiten liegen bei 90 cm. Im Dachgeschoss ist eine Sauna mit dem Rollstuhl befahrbar, die Türbreite beträgt 90 cm. Für das Betreten der Dachterrassen müssen zwei Stufen passiert werden.

Der Südwest-Balkon mit eigenem Strandkorb ist ein angenehmer Ort, um sich zu entspannen, frische Luft zu schnappen und die Sonne bei einem Sommergetränk zu genießen.
Spaß und Erholung für die gesamte Familie
Weit ab von der Hektik und den Besuchermassen öffentlicher Wellnessangebote, finden Sie im Dachgeschoss des Hauses auf 190 m² die Ruhe, die Sie sich verdient haben. Entspannen Sie im hauseigenen, kostenfreien Wellnessbereich mit zwei Saunen und gemütlichem Ruheraum. Genießen Sie die klare Ostseeluft auf der großen angrenzenden Dachterrasse.
Ihre Kinder dürfen sich auf den vielseitig gestalteten Freizeitbereich (390 m²) im Souterrain mit Tischtennis, Kickertisch, Schachbrett und Spielezimmer freuen, der selbst an "Schlechtwettertagen" keine Langeweile aufkommen lässt. Erwachsene finden am Billardtisch oder in der gemütlichen Lounge-Ecke Ausgleich mit einem guten Buch oder Musik im Ohr.
Die aktiven Urlauberinnen und Urlauber kommen in dem großzügigen, lichtdurchfluteten Fitnessraum auf ihre Kosten, wo das Angebot an hochwertigen Marken-Sportgeräten u. a. mit verschiedenen Cardiogeräten, einer Multifunktions-Kraftstation und Hantelbänken ein individuelles Training ermöglicht.
Im Souterrain stehen allen Gästen des Hauses zwei Waschmaschinen und zwei Trockner zur freien Verfügung.
Wir freuen uns auf Ihren
Aufenthalt im Apartment "Wikinger Exklusiv"
Buchen Sie ohne Risiko! Den Reisepreis erfahren Sie nach Eingabe des Reisezeitraums.
- bis zu 5 Tage vor Anreise kostenfrei stornierbar für maximale Flexibilität
- keine festgelegten An- und Abreisetage
- jetzt buchen und erst 7 Tage vor Anreise bezahlen
- Best-Preis-Garantie
- keine Anzahlung erforderlich
- Schlüsselübergabe direkt vor Ort
- Ansprechpartnerinnen und Ansprechpartner vor Ort täglich erreichbar
- Erstausstattung inklusive für einen komfortablen Urlaubsbeginn
- Bettwäsche und Handtücher inklusive
- hochwertige Gästemappe mit Ausflugsempfehlungen
- Kleinkinderausstattung bequem unter "Zusatzleistungen" hinzubuchen
Aktionspreise
- 5 % Frühbucherrabatt bei Buchung mind. 9 Monate im Voraus
- 5 % Rabatt bei Buchung von mind. 5 Nächten & 10 % Rabatt bei Buchung von mind. 10 Nächten in folgenden Zeiträumen:
- 05. November 2023 - 21. Dezember 2023
- 04. Januar 2024 - 22. März 2024
- 26. Oktober 2024 - 20. Dezember 2024
- 03. Januar 2025 - 11. April 2025





















